TOWN HALL APARTMENT, Corfu Town
Ref: 20765Corfu Town
Description
On the first floor, this large gracious apartment is in need of general renovation and refurbishment.
It has a long balcony at the front, overlooking the Town Hall square, and windows on three sides to allow plenty of light to flood inside.
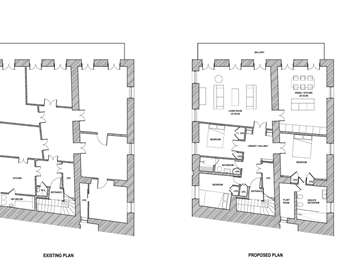
In its original condition, the apartment has several interlinking rooms, and needs reconfiguring to turn it into a comfortable home to today's standards. The present owners have already prepared plans along these lines to create a three bedroom apartment with two bathrooms. There would be a good sized living room and kitchen at the front opening onto the balcony.
Properties of this size and quality and in this prestigious location rarely come onto the market, so this is well worth viewing.
Floor Plans
(Click the floor plans to view larger versions)
Downloads
Important Remarks
Please note that all the above information has been provided by the vendor in good faith, but will need verification by the purchaser's solicitor. Any areas, measurements or distances referred to are given as a guide only and are not precise. Floor plans are not drawn to scale and are provided as an indicative guide to help illustrate the general layout of the property only. The mention of any appliances and/or services in this description does not imply that they are in full and efficient working order and prospective purchasers should make their own investigations before finalising any agreement to purchase. It should not be assumed that any contents, furnishings or other items shown in photographs (which may have been taken with a wide angle lens) are included in the sale. Any reference to alterations to, or use of, any part of the property is not a statement that the necessary planning, building regulations, listed buildings or other consents have been obtained. We endeavour to make our details accurate and reliable, but they should not be relied on as statements or representations of fact and they do not constitute any part of an offer or contract. The seller does not give any warranty in relation to the property and we have no authority to do so on their behalf.



