AGIOS NICHOLAS BEACH HOUSE, Agios Spiridon, Corfu
Ref: 10512Agios Spiridon
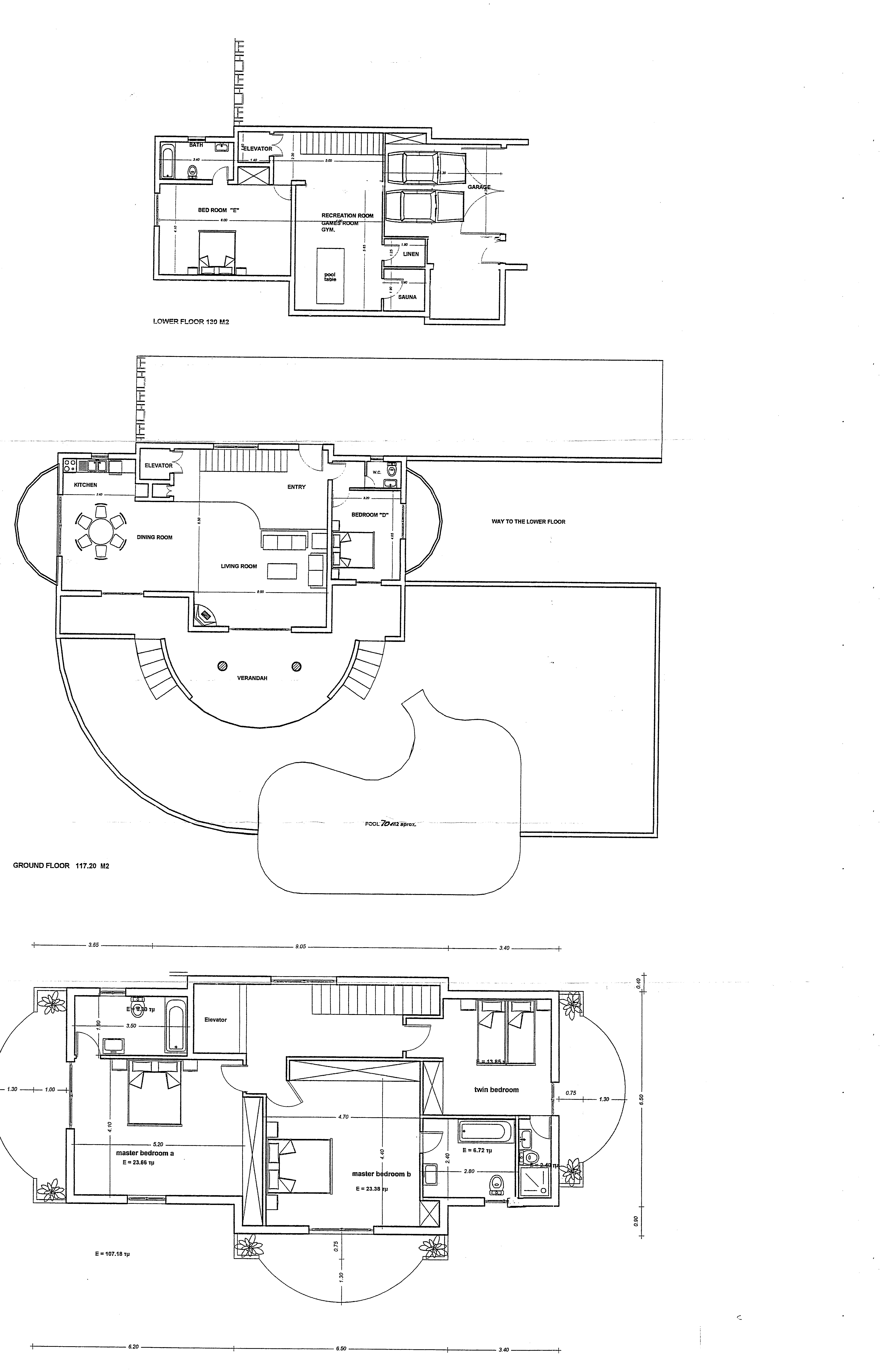
Description
This is a villa which has been built with luxury in mind on a wooded headland looking out across the sea towards the mountains of distant Albania. It offers total privacy and its own beach and jetty.
Situated at the end of a long private road, with electric gates, there are several outside dining terraces, a heated 70 sq.m. pool, a brick barbecue with gazebo, childrens' playground and footpath access to the private beach, jetty and anchorage.
The garden has an automatic watering system.
The accommodation includes five ensuite bedrooms - two of the bathrooms having a jacuzzi, and one specifically for people with special needs.
The ground floor, apart from a two car garage boasts a fully equipped personal gym with sauna and games room, and the bedroom designed to accommodate a wheelchair.
On the pool level is a huge dining and living room combined, with feature fireplace, and open plan kitchen. One of the bedroom suites is also situated on this floor.
The first floor has the two main master bedrooms and a childrens' bedroom and shower room.
All windows are double-glazed with mosquite nets, and a lift shaft has been installed. Included in the price are three televisions, satellite system, DVD, Stereo, Dishwasher, washing machine, pool table, safe, etc.
An exceptional property, this villa and its grounds present a rare opportunity for a buyer to acquire a prime property in an unrivalled location.
Floor Plans
(Click the floor plans to view larger versions)
Downloads
Important Remarks
Please note that all the above information has been provided by the vendor in good faith, but will need verification by the purchaser's solicitor. Any areas, measurements or distances referred to are given as a guide only and are not precise. Floor plans are not drawn to scale and are provided as an indicative guide to help illustrate the general layout of the property only. The mention of any appliances and/or services in this description does not imply that they are in full and efficient working order and prospective purchasers should make their own investigations before finalising any agreement to purchase. It should not be assumed that any contents, furnishings or other items shown in photographs (which may have been taken with a wide angle lens) are included in the sale. Any reference to alterations to, or use of, any part of the property is not a statement that the necessary planning, building regulations, listed buildings or other consents have been obtained. We endeavour to make our details accurate and reliable, but they should not be relied on as statements or representations of fact and they do not constitute any part of an offer or contract. The seller does not give any warranty in relation to the property and we have no authority to do so on their behalf.

